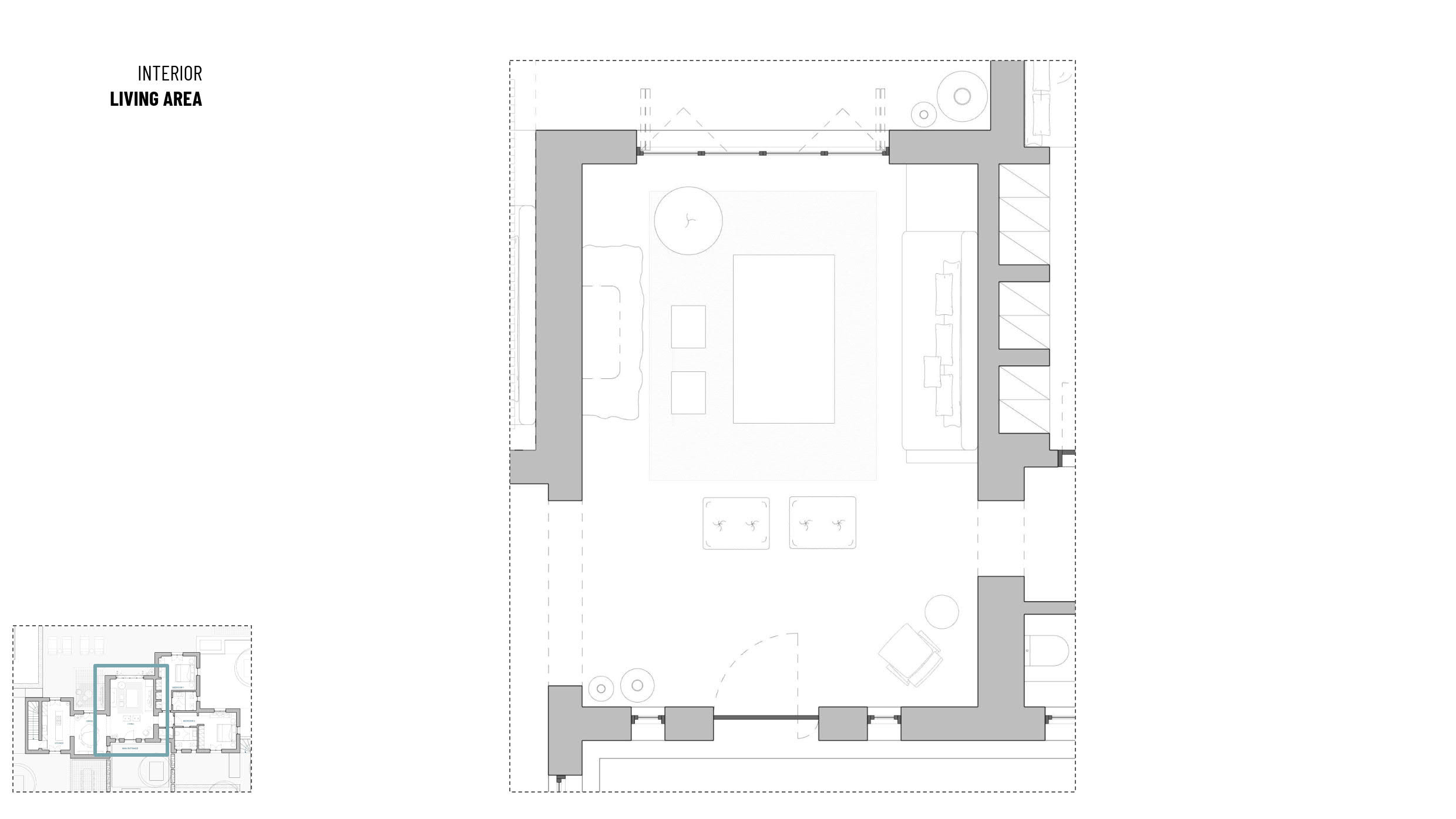
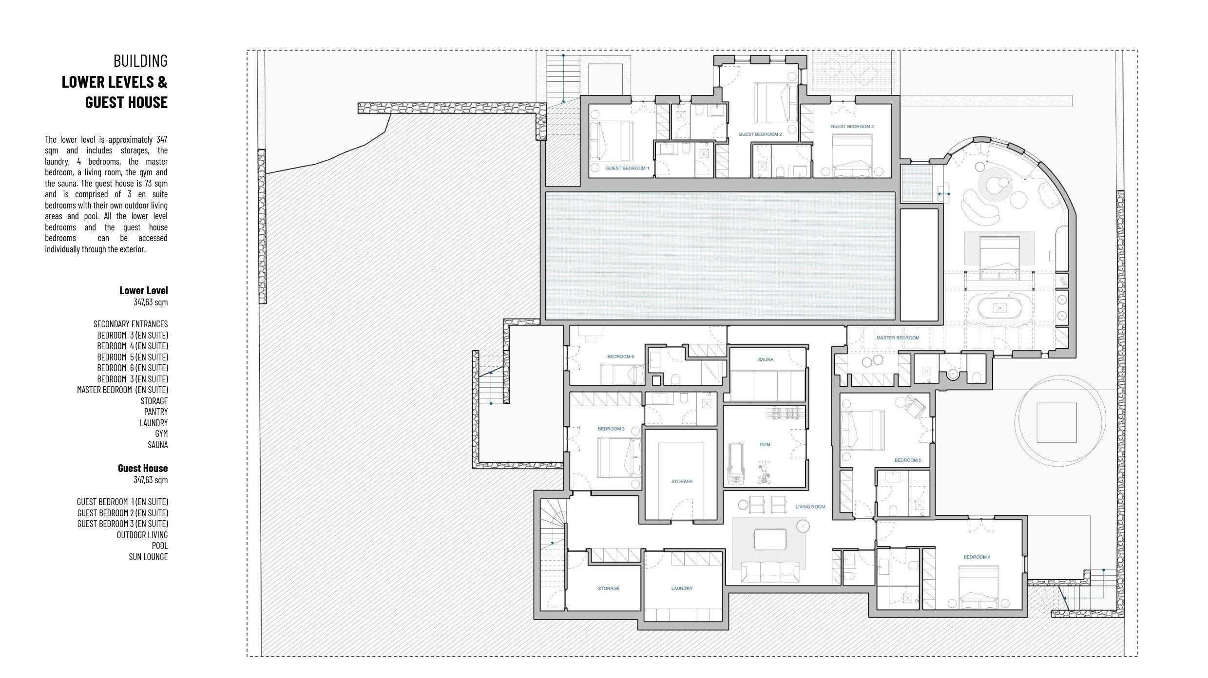
Vila u izgradnji, površine 583m², smeštena u oblasti Korakia na zapadnoj strani ostrva Paros, na placu od približno 4.002m². Idealno pozicionirana između dva glavna ulazna punkta na ostrvu. Plac se nalazi pored mora i pruža spektakularan pogled na Egejsko more ka zapadu. Teren je nagnut, sa visinskom razlikom od 16m, što omogućava izgradnju vile na više nivoa. Objekat se sastoji od prizemlja, nižeg nivoa i kuće za goste. Prizemlje površine 162m² obuhvata glavne zajedničke prostorije vile — dnevni boravak, kuhinju, trpezariju i 2 spavaće sobe sa kupatilima. Sve prostorije imaju prelep pogled na more i izlaz na spoljašnje delove vile, gde se nalazi prostor za odmor na otvorenom, roštilj i bazen (infinity pool) sa ležaljkama za sunčanje. Niži nivo ima približno 347m² i uključuje 4 spavaće sobe, glavnu spavaću sobu, dnevni boravak, teretanu sa saunom, ostave, špajz i perionicu. Kuća za goste ima površinu od 73m² i sastoji se od 3 spavaće sobe sa kupatilima, svaka sa svojim spoljnim prostorom za odmor i bazenom sa ležaljkama. Sve spavaće sobe na nižem nivou, kao i one u kući za goste, imaju poseban spoljašnji pristup. LOKACIJA I PRISTUP: Do vile se dolazi lokalnim putem sa istočne strane, a udaljena je oko 12–13 minuta vožnje od glavne luke Parikia (5,3 km) i aerodroma (7,9 km). Ostrvo Paros je lako dostupno avionom iz Međunarodnog aerodroma u Atini i drugih grčkih aerodroma poput aerodroma u Solunu. Paros je takođe povezan trajektima sa Pirejem i drugim lukama. Klasični trajekti prelaze rutu Pirej–Paros za oko 4,5 sata, dok brzi trajekti putuju oko 3 sata. Ostrvo je povezano i sa lukama Lavrio i Rafina, dok luke Naoussa i Piso Livadi povezuju Paros sa drugim Kikladskim ostrvima. Iz luke Pounta moguće je preći trajektom na obližnje ostrvo Antiparos. Paros je jedno od najlepših grčkih ostrva, poznato po beskrajnim peščanim plažama, šarmantnim tradicionalnim selima i živopisnom noćnom životu. Nalazi se u središtu Kiklada i ima oko 120 km obale. Ostrvo na jedinstven način kombinuje moderne i tradicionalne elemente, spajajući kikladski stil arhitekture, magične plaže, izvanrednu gastronomiju, poznate lokalne specijalitete i istorijske spomenike. Cena zavisi od faze izgradnje: Trenutna cena (u toku izgradnje): 2.200.000 € Cena po završetku izgradnje: 4.500.000 € Na navedenu cenu se obračunava posrednička naknada.

