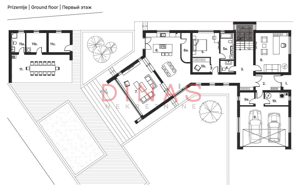
Everpine Villa – luksuzna rezidencija u izgradnji na Popovici. Nalazi se na obroncima Fruške gore, ova lokacija je poznata po izuzetnoj mikroklimi, čistom vazduhu i miru. Vila spaja prirodu i savremeni luksuz: prostrani enterijeri, panoramski pogledi i potpuna privatnost u zelenilu. Ukupna površina zemljišta iznosi 1.496 m². Everpine Villa ima preko 450m² korisnog prostora, sa prostranim prizemljem i spavaćim blokom na spratu. Dnevna soba sa salonskom visinom i velikim portalima okrenuta je ka jugu, pružajući pogled na vrh Popovice. Bazen, terase i garaža naglašavaju luksuz i funkcionalnost. Everpine Villa nudi potpunu slobodu kupcu. Možete je kupiti u fazi sive gradnje, sa dodatno urađenom fasadom, ili potpuno završenu po projektu. Svaka opcija donosi sigurnost legalnog projekta, kvalitetnu gradnju i mogućnost prilagođavanja prema vašim željama uz slobodu da se odabere nivo završetka i jasna struktura cena. Siva faza uključuje konstrukciju sa Alumil aluminijumskom stolarijom i troslojnim staklom sa argonom, dok faza sa fasadom donosi Demit izolaciju i ventilisanu fasadu na odabranim delovima. U opciji ključ u ruke podrazumevana je luksuzna završna obrada podova i enterijera. Investitor - izvođač radova pravno lice. Navedena oglasna cena je za ključ u ruke, sa PDV-om i uključenom posredničkom naknadom od 3%. Više informacija na tel: 0631119000






